
项目概述
莱美医疗美容中心位于广东省揭阳市榕城区黄岐山大道,客户群体主要为女性,设计师锁定“峡谷”与“倒影”两种视觉意象,打造恢宏的幻境空间,带来自在穿行于天然峡谷的新奇体验。梳理场域关系,综合专业性与服务性,拉开沉浸舒享的序幕。
01
概念-镜域


光,跃入规律的序列中,即刻定格了外立面的“朦”与“显”。复刻以线勾面的笔法,统一上下左右的视觉语素,在居中留白处点缀品牌的标志,为引客达境的目的制造吸引力与导引动势,顺如风的场域感悄然滋长,待人窥探“峡谷”的真容。
02
体感-对称与扩张




天花,借由反射特性作出“倒影”的解读,散发淡雅梦幻的艺术感,将人的身心全然包裹,消弭了陌生与拘谨的感觉。异形陈设保持无声的状态,却透露了“峡谷风化”的自然事实。剔透的玻璃砖融于背景,搭配圆弧造型,让此情此景有了专属的柔软与松弛。


用简化的曲面替代直面结构,构成了穿插节奏与叠加层次,简单又丰富。暖光,为纯白底色浸染了温度,少量木色与自然纹理强调了大自然的力量,塑造出“浓而不让人生畏,淡而不让人忘却”的平衡语境,具现了空间与人之间的深刻对话。
03
想象-梦幻与真实
德国哲学家尼采说过:“没有可怕的深度,就没有美丽的水面。”楼梯空间属于建筑跨纬度的场域,打造聚焦“太阳”的仰视图景,通过玻璃折射的影像营造置身水底的深邃感。向上攀登,忽又发现仍处“峡谷”天地之中,这种双重体验将主题与想象结合得恰到好处。
还原风叙峡谷的脉络,运用清暖色调共和旋转不停的线纹,超乎物质机体外,表达亦虚亦实的场域边界,提供更多的互动可能性。发光源头深藏于内嵌结构中,显形不露骨,承袭了初见时的朦胧感与梦幻感,以微妙的变化描绘“峡谷”自由流转的体验。
04
切片-山止与川行
流线型的立面结构,拟态了起伏的山峦,彰显“山止川行,风禾尽起”的诗意。夹缝中的镜面元素,收敛起张扬的本色,只隐隐透出私密空间的场景切片。曲直交汇的部分绘以暖光,阐述了纯粹温馨的视觉印象。
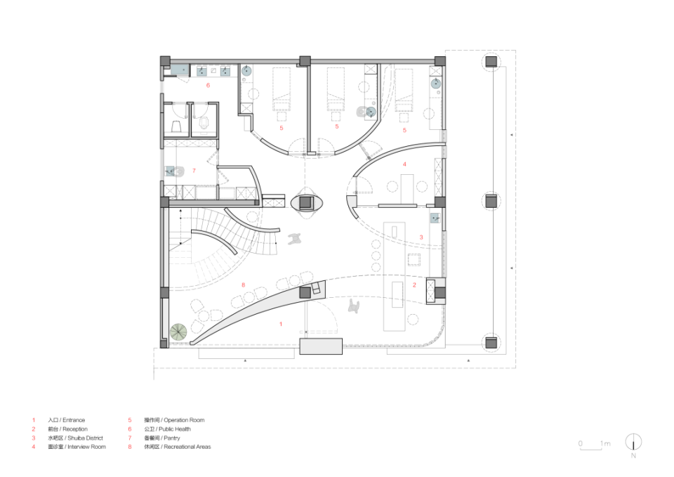
平面图-首层
平面图-夹层
平面图-二层
项目信息
项目名称:镜之峡谷-莱美医疗美容
设计机构:质感建筑设计
项目负责:马宏锋
主案设计:马学鑫
参与设计:马佳涛、陈文玲
项目地点:广东揭阳
建筑面积:400平方米
主要材料:手工漆、洞石、瓷砖、免漆板、玻璃砖、玻璃
设计时间:2022年8月
竣工时间:2023年2月
免责声明:本文章如果文章侵权,请联系我们处理,本站仅提供信息存储空间服务如因作品内容、版权和其他问题请于本站联系